WEST IRELAND INVESTMENTS, Secures Its Third Parcel of Land This Year to Further Develop the Logistics and Warehousing Infrastructure of the UAE
Dubai, UAE - October 2025
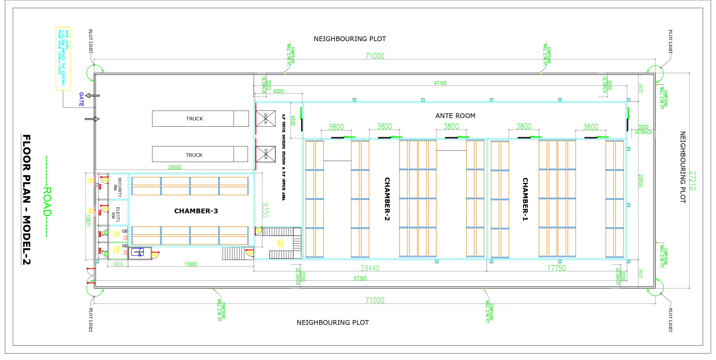
WEST IRELAND INVESTMENTS proudly announces the acquisition of its third parcel of over 20,000 sq ft. of Land in 2025, strategically located in Jebel Ali South, further strengthening the company’s growing presence in the UAE’s logistics and industrial real estate sector.
A Prime Strategic Location
The newly acquired site is positioned just 12 minutes from Gate 4 of Jebel Ali Free Zone (JAFZA) and 24 minutes from Al Maktoum International Airport, placing it at the crossroads of key transport and logistics routes. This central position offers seamless access to both sea and air-freight corridors, making it an ideal hub for warehousing, storage, and distribution operations across the UAE and wider Gulf region.

Supporting Dubai’s Vision for Logistics Excellence
This expansion aligns with the Dubai Logistics Strategy, which aims to strengthen the Emirate’s global competitiveness by developing efficient, technology-driven logistics infrastructure. Through this new development, WEST IRELAND INVESTMENTS reaffirms its commitment to supporting Dubai’s vision of becoming one of the world’s most advanced logistics and distribution centers.
The project will add to the growing demand for premium Cold Storage logistics and warehousing space in the UAE, driven by the country’s internal growth and its strategic trade position. WEST IRELAND INVESTMENTS aims to leverage its deep expertise over the past 20 years, in real estate and logistics infrastructure to deliver long-term value for tenants, investors, and partners alike.
“Our latest acquisition in Jebel Ali South represents more than just another investment-it’s a strategic move that positions us at the heart of one of the most dynamic logistics zones in the world,” said Steve Mayne, Founder and CEO of WEST IRELAND INVESTMENTS.
“We are proud to contribute to Dubai’s logistics vision by creating infrastructure that empowers global trade, fosters innovation, and drives economic growth.”

.jpg)

